联系方式
+86 13316661002
+86 0769 88514001
+86 13316661002



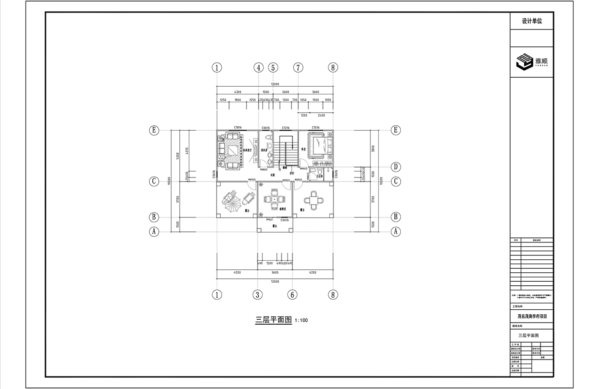
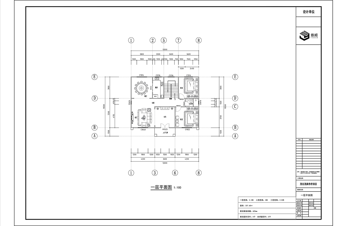
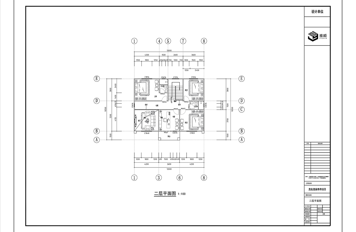
所属:现代风格住宅
融合北美先进轻钢建造技术的绿色装配式高端居住产品,以 G550 冷弯高强度镀铝锌钢龙骨为核心承重骨架,搭配多层复合保温围护结构,工厂预制率超 80%,现场无湿作业快速装配完成。产品支持欧式、新中式、现代简约等全风格外观与独栋 / 联排等全户型定制,结构稳固耐用,兼具抗震抗风、保温隔音、环保舒适等核心优势,是乡村高端自建房、私人庄园、文旅度假别墅的理想选择。

